Children allowed

Facilities

Parking
Non-smoking rooms
Air conditioning
Restaurant
Terrace
Family rooms
Luggage storage
Staff adhere to local safety protocols
Guest rooms disinfected between stays
Cleaning standards that are effective against Coronavirus
See all facilities

Review Highlights

Pros:
Clean accommodations
Great views
Comfortable stay
Good food
Cons:
Service issues reported
Rooms can be small
Perceived high pricing

Categories

Cleanliness
9.21
The accommodations were noted as very clean and comfortable.
Service
8.68
Standard quality for this hotel tier, though some reviews mention a lack of service.
Location
9.22
Great location with amazing views and proximity to the port.
Room Quality
7.67
Some rooms were described as tight and basic, but overall decent quality.
Amenities
8.7
Good amenities were mentioned, especially the availability of a restaurant and breakfast.
Value for Money
7.66
Concerns about high prices and service; perceived as overpriced by some guests.
Food and Beverage
8.21
Food quality was highlighted, though some dissatisfaction with menu pricing.
Overall Experience
8.68
Overall a positive experience with minor grievances expressed in reviews.
* This sentiment is summarized by AI based on user reviews.
Updated at: 2026-01-09 07:27

Property Description

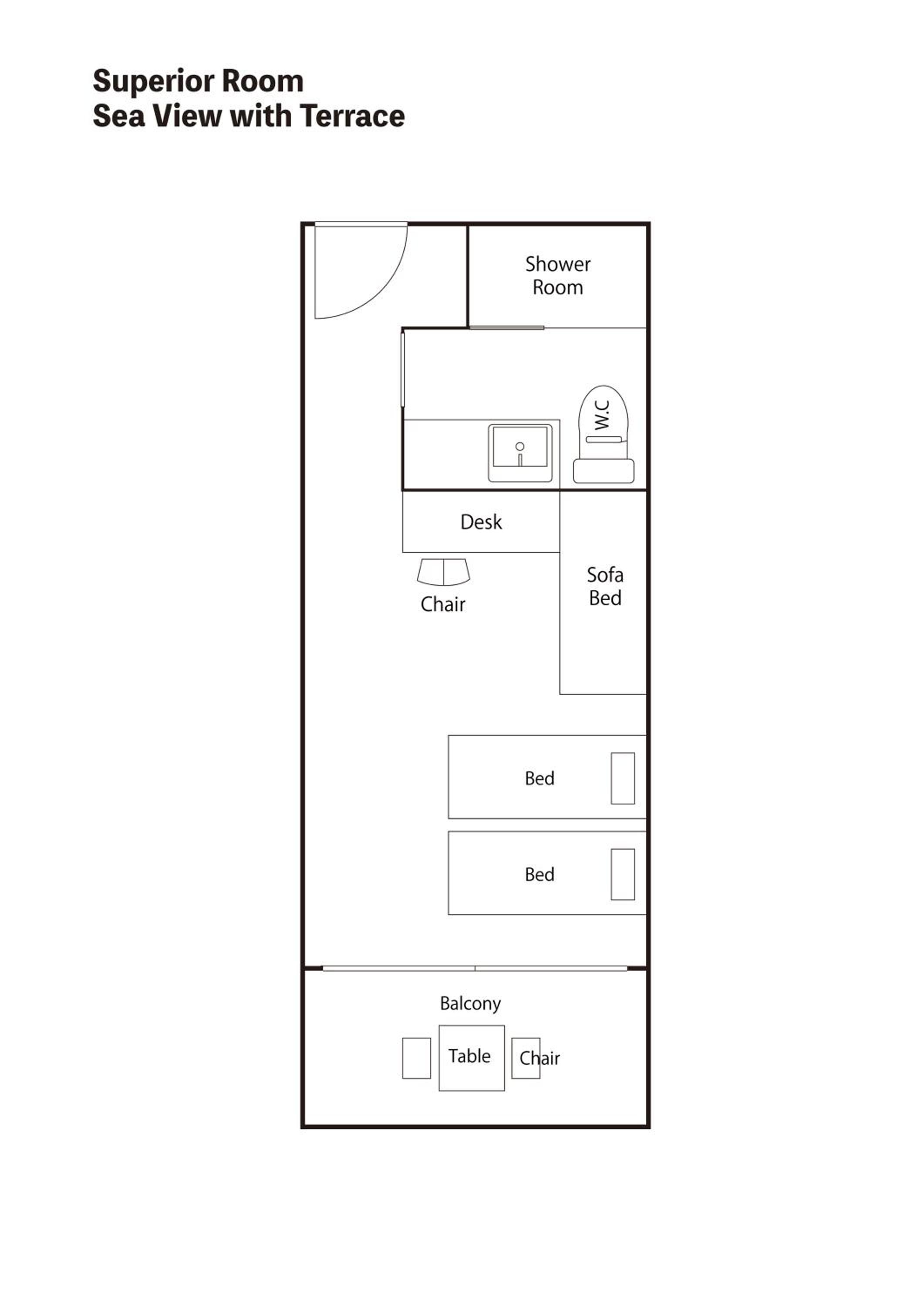
Charming Accommodation in Naoshima

Convenient Amenities: MY LODGE Naoshima offers a garden, free parking, a terrace, and a restaurant for a comfortable stay. The air-conditioned rooms with free WiFi and private bathrooms ensure a relaxing experience.

Cozy Rooms: Each room at the hotel features a desk, kettle, and some even include a kitchenette with a microwave. Bed linen and towels are provided, guaranteeing a cozy and convenient stay.

Nearby Attractions: Explore Naoshima with ease as popular destinations like Sumiyoshi-taisha Temple, Naoshima Christ Church, and Chichu Art Museum are just a stone's throw away. Book your stay at MY LODGE Naoshima for a memorable experience.

Important information:

Property applies the different cancellation policy to guests who book for 4 and more rooms.Guests are required to show a photo ID and credit card upon check-in. Please note that all Special Requests are subject to availability and additional charges may apply.
Guests with tattoos may not be permitted to use the property’s public bathing areas or other facilities where the tattoos might be visible to other guests.

Check-in and check-out hours:
Check-out: 10:00 AM
Airport code: TAK

Property Policies

  • Groups

    When booking more than 3 rooms, different policies and additional supplements may apply.

  • Children and extra bed policy

    Children of any age are allowed.
    Children up to and including 5 years old stay for free when using an existing bed.
    You haven't added any cots.
    You haven't added any extra beds.

  • Pets

    Pets are not allowed.

  • Internet

    WiFi is available in the hotel rooms and is free of charge.

  • Parking

    Private parking is possible on site (reservation is needed) and costs JPY 1000 per day.

Location

Guest Reviews

8.5
Based on 1892 reviews
Cleanliness: 9.21
Service: 8.68
Location: 9.22
Room Quality: 7.67
Amenities: 8.7
Value for Money: 7.66
Food and Beverage: 8.21
Overall Experience: 8.68
S
Samantha couple gb
9
2026-05-22 via Nuitee
S
Sigenari extended_group jp
7
少し割高
Pros:

新しくて、景色が良い

Cons:

値段の割に狭い

2026-05-21 via Nuitee
J
Jean couple gb
8
Excellent place to stay in close proximity to the port and within bus or cycling distance of the art museums.
Pros:

Loved the views, the facilities such as sunset bar, and comfortable bedroom.

Cons:

Not keen on the breakfasts - Japanese and Western. Dinner was ok.

2026-05-21 via Nuitee
P
Philippus couple gb
9
Pros:

Great location close to all the must-do things on Naoshima Island.
Do book a corner room, offering great views.
Dinners are fun for one night, and do go for a drink at the view bar.

Cons:

WE had three breakfasts and all were exactly the same.

2026-05-21 via Nuitee
S
Sabine couple fr
9
Hôtel magnifique! Si vous voyagez léger et que vous n’avez rien à demander .
Pros:

La chambre d’angle spacieuse,très belle , propre bien équipée et confortable avec une vue à couper le souffle même dans la salle de bain.

Cons:

La rigidité du service pour emmener les bagages du ferry jusqu’à la chambre,la monté est rude .Donc un conseil:voyagez vraiment léger.On peut déposer les bagages chez un loueur de vélo mais il était fermé à notre arrivée.Et la monté des bagages de l’accueil à la chambre est rude aussi malgré un monte charge.
La salle du restaurant ressemble plutôt à une cantine.On a demandé une tranche de pain de mie en plus du plateau imposé.Il a fallu une longue concertation avant de répondre que c’était en supplément !
Finalement lorsqu’on a voulu payer le jour du départ ,on nous a dit que c’était offert mais trop tard pour l’agacement .

2026-05-21 via Nuitee
W
Walid family_with_children nl
10
2026-05-20 via Nuitee
M
Maarit couple fi
10
Kaunis toimiva kokonaisuus!
Pros:

Kaunis huone!😂 Hyvä sijainti!

2026-05-20 via Nuitee
N
Nadia couple lu
8
Pros:

Stanza e immobile completamente nuovi, preso stanza da 4 ma per 2 persone ed era spaziosa.
Raccomando aperitivo al tramonto al bar in alto, vista spettacolare . Tramonti si vedeva anche dalla nostra stanza ma meno suggestivo.

Cons:

Costo elevato per la prestazione, no yukata, no colazione, no pick up, 900 metri in salita dal check in alla stanza.

2026-05-19 via Nuitee
O
Oliver couple de
9
Pros:

Beautiful location, the sea view rooms in the separate building are nice. Don't understand why other guests complain about the hill to access the hotel. Nothing weird here.

Cons:

Breakfast acceptable, dinner not very creative and expensive -> go to town

2026-05-18 via Nuitee
M
Mary couple us
10
2026-05-17 via Nuitee
D
Debra extended_group gb
9
Fabulous!
Pros:

Suited our needs perfectly for a 2 night stay on the island. 4 of us shared a 2 bedroom chalet/cottage with living/ kitchen, shared bathroom, sauna and outdoor bathtub. Spotlessly clean, comfortable and functional. Staff all very friendly and helpful. Food amazing!

Cons:

It’s not super spacious, but still practical and comfortable. We could sit out on a little terrace/deck too.

2026-05-16 via Nuitee
V
Volker couple de
8
Rundum sorglos Service
Pros:

Sehr freundliche Gastgebende, sehr hilfsbereit, gutes Konzept und gute Lage

2026-05-15 via Nuitee
A
Anna family_with_children gb
10
Pros:

Very nice and comfy

2026-05-13 via Nuitee
M
Mikko couple fi
10
Menisin uudestaan.
Pros:

Paljon henkilökuntaa. Kaikki toimi kuten puhuttiin. Ei ollut pömpöösi vaan erittäin mukava paikka.

Cons:

Kohde oli luonnossa viehättävämpi ja laadukkaampi kuin mainoskuvissa.

2026-05-12 via Nuitee
L
Laura couple mx
9
Vista fantástica, comodidad
Pros:

La vista y la habitación muy amplia y cómoda con una terraza amueblada, muy cercana al puerto del ferry, aunque caminando con equipaje la subida es algo difícil.

Cons:

Que no había servicio en la terraza pública, pero nos avisaron desde que llegamos, el desayuno que incluimos nos pareció muy poco y no de muy buena calidad.

2026-05-12 via Nuitee
R
rosanna couple ar
9
Pros:

Ubicación vistas desde todos lados

2026-05-11 via Nuitee
F
federica couple it
6
Struttura carina ma staff pessimo
Pros:

Struttura carina e nuova, ma c’è una salita faticosa per raggiungerla

Cons:

Lo staff davvero inefficiente, oltre a non parlare inglese, non forniscono alcun supporto ai turisti (su bici, bagagli ecc)

2026-05-11 via Nuitee
E
Emmanuelle family_with_children ch
7
2026-05-10 via Nuitee
V
Valerie extended_group fr
6
Les prix sont beaucoup trop élevés au regard de la prestation
Pros:

Le petit sauna dans la chambre et les repas, la deco de la chambre e n bois c'est très bon mais pas copieux,

Cons:

Chambre petite, lit d'appoint pas. Confortable, petit déjeuner trop bruyant pour avec le bruit de la vaisselle

2026-05-10 via Nuitee
S
Sandra couple gb
9
Really enjoyed our stay here. Great views from the balcony and a peaceful location.
Pros:

Nice rooms, lovely view from our balcony and we were able to hire bikes from reception which was great. Food was nice. The hotel was also very responsive to my emails when we made the booking.

Cons:

It’s up a bit of a steep hill and then staircases in the lodge so be prepared to manage your luggage.

2026-05-09 via Nuitee