Suiun Tei

Hotels
2-1 , Asakura , jp

Facilities

Health or beauty spa nearby
Offsite parking discounted rates available
Non-smoking rooms
Air conditioning
Restaurant
Luggage storage
Safety deposit box
Non-smoking throughout
Private check-in/check-out
Staff adhere to local safety protocols
See all facilities

Property Description

Garden Oasis
Discover a serene retreat at Suiun Tei, nestled in Asakura with lush gardens and peaceful surroundings.

Modern Comforts
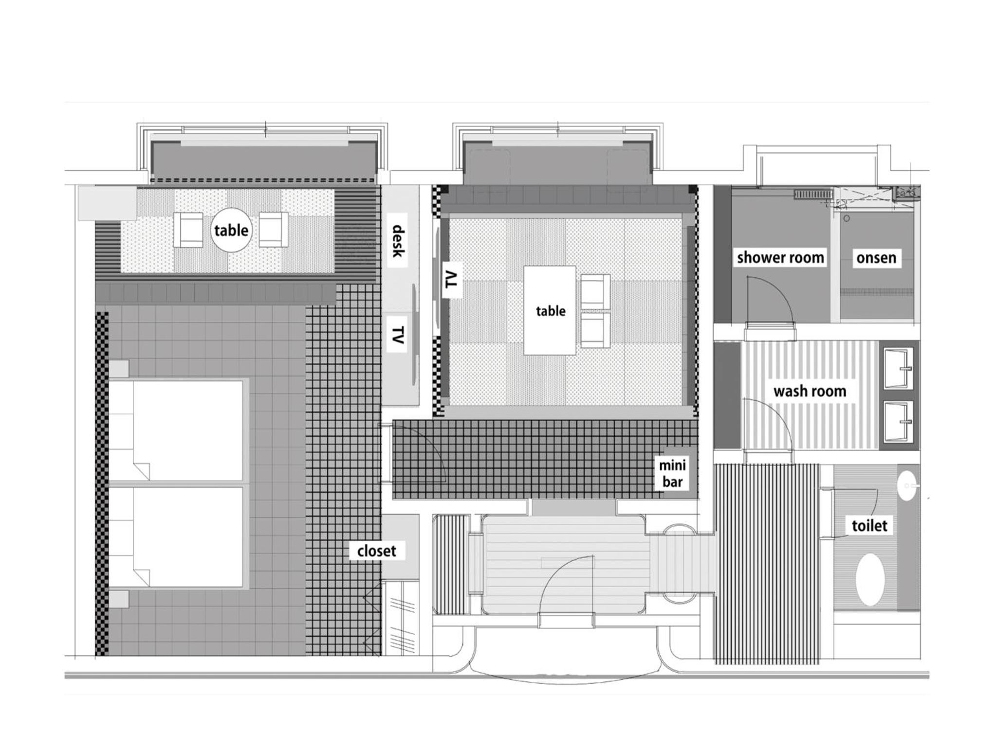
Indulge in well-appointed air-conditioned rooms with a range of amenities including a coffee machine, minibar, and flat-screen TV.

Culinary Delights
Savor an American breakfast each morning and unwind with drinks at the on-site restaurant and bar.

Experience tranquility and comfort at Suiun Tei – book your stay today for a memorable getaway.

Important information:

This property will not accommodate hen, stag or similar parties.

Check-in and check-out hours:
Check-out: 11:00 AM

Location